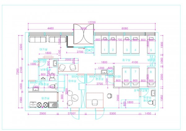
사천 사남한의원 신설공사
페이지 정보
작성자 최고관리자 작성일22-07-01 08:37 조회4,172회 댓글0건관련링크
-
http://한의원인테리어.com
1397회 연결
-
http://hanmediinterior.com
1329회 연결
본문
댓글목록
등록된 댓글이 없습니다.


